County News
South Walton Fire District Junior Lifeguard Program Is Producing Results
She started as part of our #SWFDJuniors family, and now take a look at how far she has come! We are so excited to give a shoutout to Juniors Alum Olivia Moore, who is officially serving in the position of seasonal lifeguard this summer after multiple years of...
Walton County Jail Sees Transformation, Accomplishments and Victories
There's so much good. Sometimes it just takes stopping and looking for it. Over the past few months, the Walton County Jail has become a place of transformation, filled with accomplishments and personal victories. From the second female forklift graduating class to...
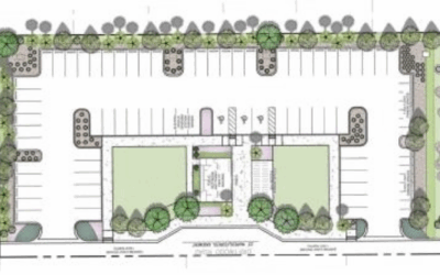
Walton Beach Operations Share Plans and Progress
Walton County Beach Operations Director Brian Kellenberger recently shared news about upcoming municipal parking projects with the Walton County Tourist Development Council. Referring to the Driftwood Road Municipal Parking Facility, Director Kellenberger said the...
Citizens Academy Launches Its Second Year
The Citizens Academy, an initiative sponsored by the Walton County Board of County Commissioners (BCC), began its second annual class Monday night. Citizens Academy is designed to provide an in-depth understanding of the inner workings of our local government. This is...
Destin Commons Welcomes the First U.S. Location of Ekko Fashions; Ekko Also Starts New Online Shopping Platform
Lifestyle fashion brand EKKO is set to open its first U.S. retail location at the Destin Commons, located at 4100 Legendary Drive, on Friday, June 6 at 11:30 a.m. The brand will simultaneously launch their online shopping platform www.ekko.style. Founded in 2013 on...
Walton Board of County Commissioners Meeting Yields Progress on Numerous Issues
The Walton County Board of County Commissioners (BCC) carried on a lengthy regular meeting on Tuesday, May 27, but made progress on a significant number of important initiatives. Among the items passed by general consent, in accordance with the travel policy, the...
Sunny Airdrops Over Son Tay
A C-130J dropped two palletized water containers while flying above an area known as the Son Tay drop zone of the Eglin Test and Training Complex May 30. The flight and drop were part of a 417th Flight Test Squadron test mission and a monthly training requirement for...
Vehicle Burglaries Lead to Arrests and Recovered Firearms
On May 19th, our agency received reports of multiple vehicle burglaries in a local subdivision, where suspects entered unlocked vehicles and stole three firearms along with various personal items, including a pair of AirPods. Thanks to quick work by our department—and...
Obituaries
No Results Found
The page you requested could not be found. Try refining your search, or use the navigation above to locate the post.
Sports
No Results Found
The page you requested could not be found. Try refining your search, or use the navigation above to locate the post.








